Espace propriétaire
fr

Votre recherche

La Tour-de-Salvagny (69890)

4 pièces - 94 m²

La Tour de Salvagny ( 69890 ) Maison 94 m2 habitables 3 chambres parfait état terrain de 484 m2 gare SNCF.

560 000 €
Ref : abcdef208
A propos de ce bien

Dossier 208:

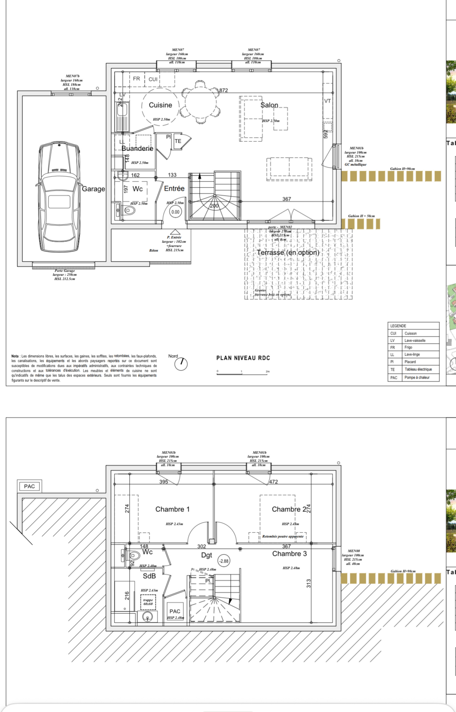
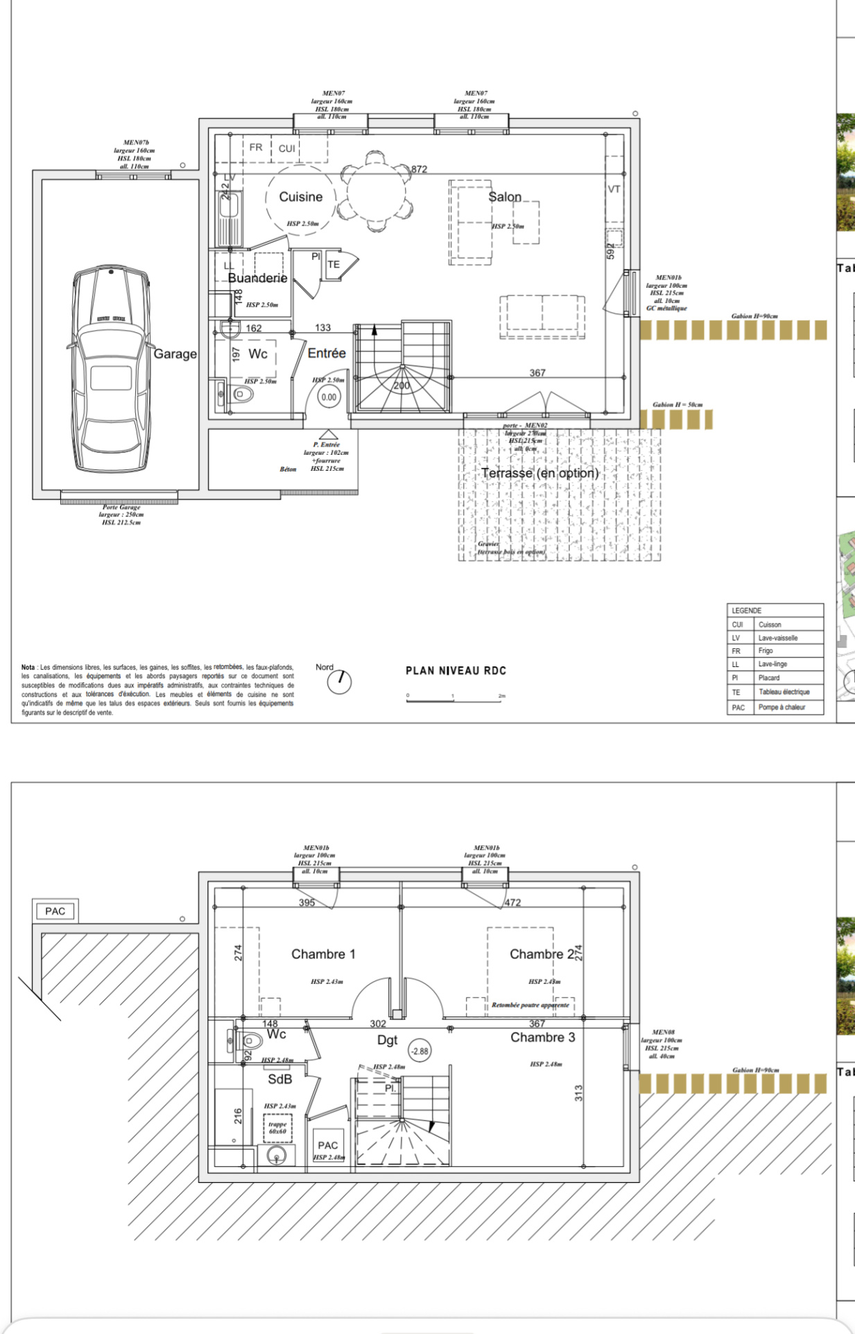
La Tour De Salvagny ( 69890) , Bureau Sully vous présente ce bien rare à la vente. Maison de très belle facture de 2019 sous garantie décennale en parfait état de 94 m2 habitables, maison économique & écologique classée DPE Energie A & GES A, édifiée sur un terrain de 484 m2 arboré & parfaitement orienté, avec vue sur les monts du Beaujolais, sans vis à vis, proche de Lyon, ( TCL Bus direct, train, A89), toutes commodités, commerces, transports, écoles accessibles à pied. Evoluant au coeur d'une commune conviviale, idéalement conçue pour une famille, située dans un secteur préservé et priviliégé. Cette belle maison d'architecte combine espace, lumière et tranquillité, celle-ci a été réalisée sur deux niveaux ce qui lui apporte une parfaite configuration d'espaces à vivre et une luminosité optimisée. Elle se compose: Au premier niveau : Dès le hall d'entrée passé, vous arriverez sur des espaces baignés de lumière vous offrant de belles perspectives sur les jardins. Vous profiterez d'une cuisine ouverte sur une pièce à vivre donnant sur les extérieurs vous invitant à la convivialité. Au même niveau, une buanderie & wc indépendant. Au second niveau : 3 chambres, deux très belles chambres parfaitement distribuées & agencées de 10, 80 m2 & 12, 93 m2, une troisième chambre de 11,33 m2. De part la conception, ces trois espaces sont très esthétiques. Une salle d'eau et wc indépendant. Les extérieurs : Un travail paysager de qualité a été apporté à ce bien, vous profiterez également de deux terrasses. Un garage de 22 m2 ainsi que 2 places de stationnement privées complètent cet ensemble. Pour votre confort : Pompe à chaleur individuelle Ballon thermodynamique Fenêtres PVC & volets roulants électriques ... Tarif : 560 000 € honoraires inclus à la charge du vendeur. Pour une visite, des informations, contactez David BENOIT o6 74 59 2o 76 agent commercial Bureau Sully. Les informations sur les risques auxquels ce bien est exposé sont disponibles sur le site. Géorisques: www.géorisques.gouv.fr

Descriptif de ce bien
Général
Code postal 69890
surface terrain 484 m²
Surface loi Carrez (m²) 94 m²
Nombre de chambre(s) 3
Nombre de pièces 4
Nombre de niveaux 2
Vue sur le Beaujolais
Détails
Nb de salle d'eau 1
Mode de chauffage Electrique, Pompe à chaleur
Type de chauffage Autre, Convecteur
Format de chauffage Individuel, Individuel
Terrasse OUI
Nombre de garage 1
Nombre de parking 1
Exposition Sud-Est
Année de construction 2019
Composition
Rez de chaussée
entrée 3.73 m²

salon/sejour 30.26 m²

cuisine 7.26 m²

WC 3.00 m²

buanderie 2.05 m²

chambre 11.33 m²

WC 1.36 m²

salle d'eau 3.75 m²

6.25 m²

garage 22.11 m²

parking

chambre 12.93 m²

pièce à vivre 46.31 m²

chambre 46.42 m²

chambre

chambre 10.80 m²

Financier
Prix de vente 560 000 €
Les honoraires d'agence seront intégralement à la charge du vendeur  
Taxe foncière annuelle 858 €
Energie
DPE GES
Autour du bien
  • Commerces et santé
  • Loisirs
  • Ecoles
  • Transports
  • Pratique
Contacter pour ce bien
L'agence

Guillaume TAMBON


Téléphone 06 30 77 29 48
Adresse
129 rue Vendome 69006 Lyon

Julien DUVERT


Téléphone 006 18 64 52 32
Adresse
129 rue Vendome 69006 Lyon

* Champ obligatoire

Les informations recueillies sur ce formulaire sont enregistrées dans un fichier informatisé par La Boite Immo agissant comme Sous-traitant du traitement pour la gestion de la clientèle/prospects de l'Agence / du Réseau qui reste Responsable du Traitement de vos Données personnelles. La base légale du traitement repose sur l'intérêt légitime de l'Agence / du Réseau. Elles sont conservées jusqu'à demande de suppression et sont destinées à l'Agence / au Réseau. Conformément à la loi « informatique et libertés », vous disposez des droits d’accès, de rectification, d’effacement, d’opposition, de limitation et de portabilité de vos données. Vous pouvez retirer votre consentement à tout moment en contactant directement l’Agence / Le Réseau. Consultez le site https://cnil.fr/fr pour plus d’informations sur vos droits. Si vous estimez, après avoir contacté l'Agence / le Réseau, que vos droits « Informatique et Libertés » ne sont pas respectés, vous pouvez adresser une réclamation à la CNIL. Nous vous informons de l’existence de la liste d'opposition au démarchage téléphonique « Bloctel », sur laquelle vous pouvez vous inscrire ici : https://www.bloctel.gouv.fr Dans le cadre de la protection des Données personnelles, nous vous invitons à ne pas inscrire de Données sensibles dans le champ de saisie libre.
Ce site est protégé par reCAPTCHA, les Politiques de Confidentialité et les Conditions d'Utilisation de Google s'appliquent.

Découvrir nos outils