Espace propriétaire
fr

Votre recherche

Saint-Didier-au-Mont-d'Or (69370)

5 pièces - 133,10 m²

SAINT-DIDIER-AU-MONT D'OR - Proche centre village - Maison + Studio indépendant

650 000 €
Ref : 251000
A propos de ce bien

SAINT-DIDIER-AU-MONT D'OR - Proche centre village - Jolie maison 4 pièces + Studio indépendant pour une surface totale de 130m2 offrant de belles prestations avec jardin privatif, piscine, vaste terrasse et stationnements. Le tout évoluant au sein d'un superbe cadre de vie, calme loin des nuisances.


Ce qui nous a séduit :


- La maison bénéficie d'une belle et lumineuse pièce de vie, avec cuisine US équipée, ouverte sur l'exterieur grâce à de larges baies vitrées à galandage donnant directement sur la terrasse et le jardin.

- L'étage étant consacré aux espaces nuits avec 2 chambres, avec salles de bains respectives, ainsi qu'une pièce supplémentaire pouvant faire office de bureau ou pouvant constituer une 3 ème chambre. Le tout entièrement climatisé

- En complément, un studio indépendant entièrement aménagé de 25m2 offre une alternative locative possible ou peut répondre à une problématique familiale ( ado, personne agée...)

- Jardin au calme, bien exposé et joliment arboré agrémenté d'une piscine parfaitement intégrée.

- Stationnements extérieurs au sein de la propriété entièrement sécurisés.

Prix : 650.000 euros honoraires inclus à la charge du vendeur. Contact Julien DUVERT 06.18.64.52.32 Dossier complet sur demande

Descriptif de ce bien
Général
Code postal 69370
surface terrain 600 m²
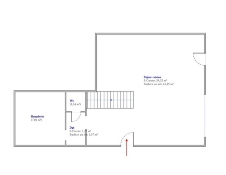
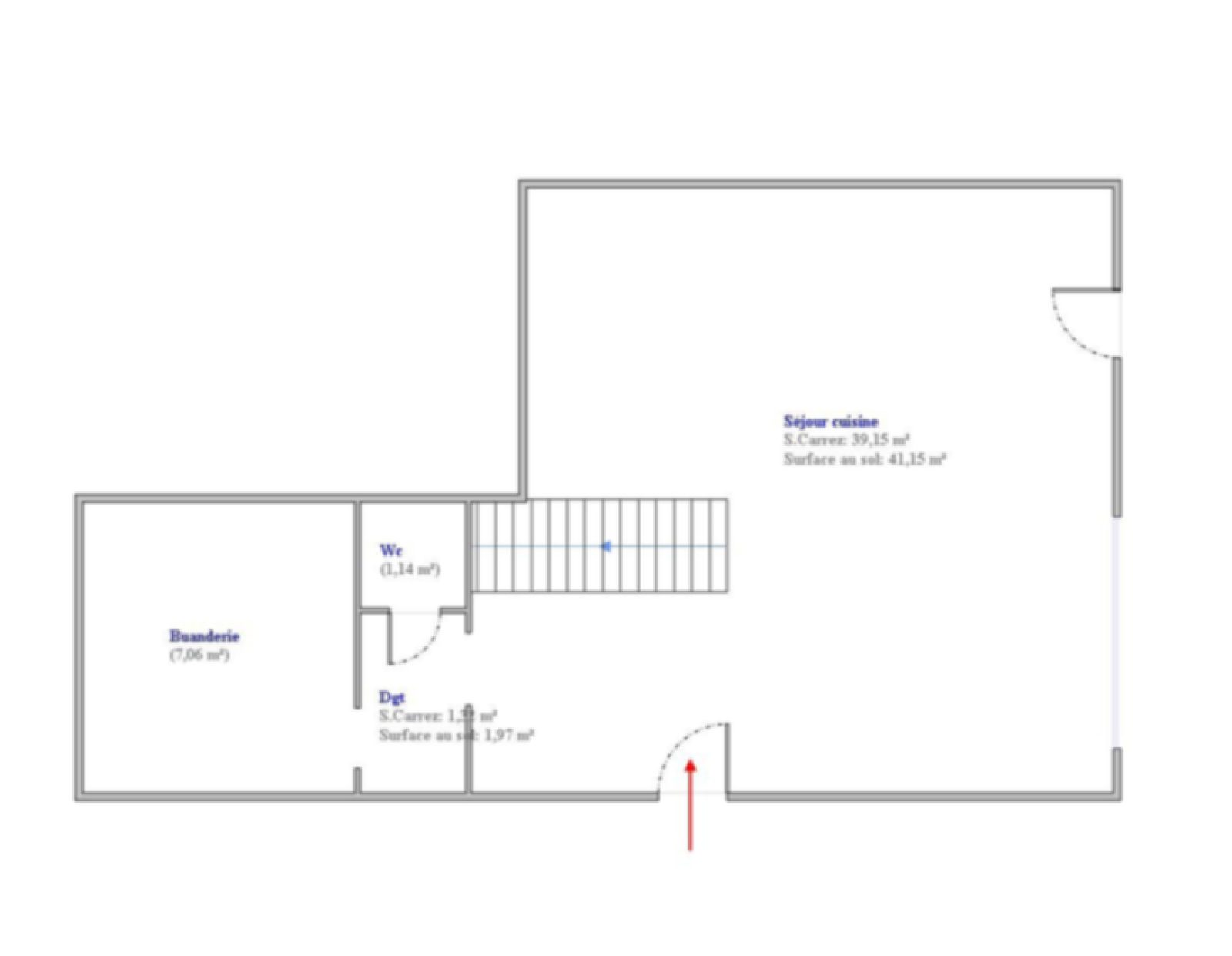
Surface loi Carrez (m²) 130,45 m²
Nombre de chambre(s) 4
Nombre de pièces 5
Nombre de niveaux 1
Vue Sur jardin privatif
Détails
Nb de salle de bains 1
Nb de salle d'eau 2
Cuisine Américaine
Type de cuisine Equipée
Mode de chauffage Electrique
Type de chauffage Radiateur
Format de chauffage Individuel
Interphone OUI
Terrasse OUI
Exposition Est
Année de construction 1974
Financier
Prix de vente 650 000 €
Les honoraires d'agence seront intégralement à la charge du vendeur  
Taxe foncière annuelle 1 373 €
Energie
DPE GES
Autour du bien
  • Commerces et santé
  • Loisirs
  • Ecoles
  • Transports
  • Pratique
Contacter pour ce bien
L'agence

Guillaume TAMBON


Téléphone 06 30 77 29 48
Adresse
129 rue Vendome 69006 Lyon

Julien DUVERT


Téléphone 006 18 64 52 32
Adresse
129 rue Vendome 69006 Lyon

* Champ obligatoire

Les informations recueillies sur ce formulaire sont enregistrées dans un fichier informatisé par La Boite Immo agissant comme Sous-traitant du traitement pour la gestion de la clientèle/prospects de l'Agence / du Réseau qui reste Responsable du Traitement de vos Données personnelles. La base légale du traitement repose sur l'intérêt légitime de l'Agence / du Réseau. Elles sont conservées jusqu'à demande de suppression et sont destinées à l'Agence / au Réseau. Conformément à la loi « informatique et libertés », vous disposez des droits d’accès, de rectification, d’effacement, d’opposition, de limitation et de portabilité de vos données. Vous pouvez retirer votre consentement à tout moment en contactant directement l’Agence / Le Réseau. Consultez le site https://cnil.fr/fr pour plus d’informations sur vos droits. Si vous estimez, après avoir contacté l'Agence / le Réseau, que vos droits « Informatique et Libertés » ne sont pas respectés, vous pouvez adresser une réclamation à la CNIL. Nous vous informons de l’existence de la liste d'opposition au démarchage téléphonique « Bloctel », sur laquelle vous pouvez vous inscrire ici : https://www.bloctel.gouv.fr Dans le cadre de la protection des Données personnelles, nous vous invitons à ne pas inscrire de Données sensibles dans le champ de saisie libre.
Ce site est protégé par reCAPTCHA, les Politiques de Confidentialité et les Conditions d'Utilisation de Google s'appliquent.

Découvrir nos outils