Espace propriétaire
fr

Votre recherche

Fareins (01480)

7 pièces - 250 m²

Fareins village ( 01480 ) Maison de Famille 250 M2 Terrain de 1180 M2 avec piscine

559 000 €
Ref : a125
A propos de ce bien

Fareins, Bureau Sully vous propose ce bien rare à la vente sur le secteur de Fareins centre ( 01480) , grand Corps de ferme rénové de 250 M2 environ, terrain de 1180 M2, piscine traditionnelle de 8 X 4.

Evoluant au coeur d'un village dynamique et convivial, idéalement conçu pour une grande famille, situé dans un secteur préservé et priviligié proche tous commerces, écoles, transports & à 5 mn de Villefranche sur Saône, gare SNCF,10 mn de l'autoroute A6 Lyon / Paris.

Cette belle propriété combine espace, lumière et tranquillité. Vous découvrerez une grande pièce à vivre avec beaucoup de cachet de 55 M2 environ avec cheminée donnant sur une véranda de 39 M2, une cuisine indépendante avec ilot central pour les moments conviviaux de 26 M2.

Un bel espace pour la chambre parentale avec salle d'eau & wc de 23 M2 environ.

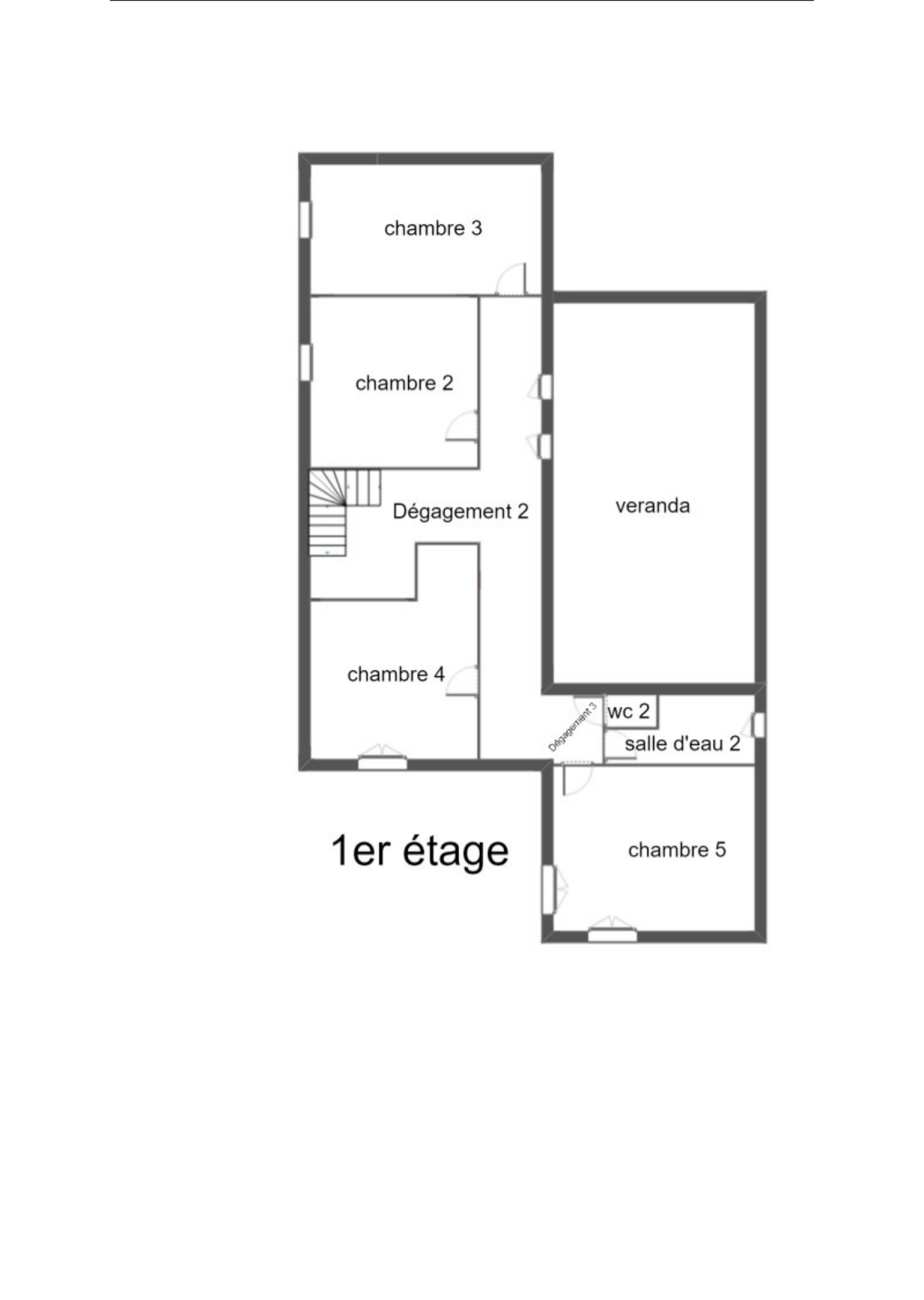
A l'étage, un bel agencement de 4 grandes chambres, nombreuses possibilités.

Les extérieurs :

Une grande cour pavée, Carport, grand espace pour rajouter 1 ou 2 garages fermés.

Terrain clos sans vis à vis, sans nuisance, plat avec une belle végation, cadre idyllique pour profiter des beaux jours autour de la piscine, du barbecue en famille.

De nombreux espaces complètent ce bien, buanderie, cave, modulables au gré de vos envies.

Tarif : 559 000 € honoraires agence à la charge du vendeur.

Pour une visite, des informations, contactez David BENOIT o6 74 59 2o 76 Agent commercial Agence Bureau Sully.

Les informations sur les risques auxquels ce bien est exposé sont disponibles sur le site.

Géorisques : www.géorisques.gouv.fr

Descriptif de ce bien
Général
Code postal 01480
Surface habitable (m²) 250 m²
surface terrain 1 180 m²
Nombre de chambre(s) 5
Nombre de pièces 7
Nombre de niveaux 1
Détails
Nb de salle d'eau 2
Cuisine Séparée
Type de cuisine Equipée
Mode de chauffage Gaz de ville, Electrique, Autre, Gaz
Type de chauffage Radiateur, TRAD_TYPE_CHAUFF_CHAUDIERE, TRAD_TYPE_CHAUFF_CHAUDIERE, TRAD_TYPE_CHAUFF_CHAUDIERE
Format de chauffage Individuel, Individuel, Individuel, Individuel
Interphone OUI
Terrasse OUI
Cave OUI
Nombre de parking 4
Surface cave (m²) 28
Année de construction 1850
Terrain arboré OUI
Composition
Rez de chaussée
chambre 17.66 m²

chambre 16.61 m²

chambre 18.64 m²

chambre 18.40 m²

chambre 20 m²

cuisine 25.81 m²

salon/sejour 54.90 m²

salle de bain 5 m²

salle de bain 5.31 m²

buanderie 19.64 m²

cave 28.52 m²

véranda 37.91 m²

annexe 50 m²

Financier
Prix de vente honoraires TTC inclus 559 000 €
Prix de vente honoraires TTC exclus 539 435 €
Honoraires TTC à la charge acquéreur 3,5%
Taxe foncière annuelle 1 200 €
Energie
DPE GES
Autour du bien
  • Commerces et santé
  • Loisirs
  • Ecoles
  • Transports
  • Pratique
Contacter pour ce bien
L'agence

Guillaume TAMBON


Téléphone 06 30 77 29 48
Adresse
129 rue Vendome 69006 Lyon

Julien DUVERT


Téléphone 006 18 64 52 32
Adresse
129 rue Vendome 69006 Lyon

* Champ obligatoire

Les informations recueillies sur ce formulaire sont enregistrées dans un fichier informatisé par La Boite Immo agissant comme Sous-traitant du traitement pour la gestion de la clientèle/prospects de l'Agence / du Réseau qui reste Responsable du Traitement de vos Données personnelles.
La base légale du traitement repose sur l’intérêt légitime de l'Agence / du Réseau.
Elles sont conservées jusqu'à demande de suppression et sont destinées à l'Agence / au Réseau.
Conformément à la loi « informatique et libertés », vous pouvez exercer votre droit d'accès aux données vous concernant et les faire rectifier en contactant l'Agence / le Réseau.
Si vous estimez, après avoir contacté l'Agence / le Réseau, que vos droits « Informatique et Libertés » ne sont pas respectés, vous pouvez adresser une réclamation à la CNIL.
Nous vous informons de l’existence de la liste d'opposition au démarchage téléphonique « Bloctel », sur laquelle vous pouvez vous inscrire ici : https://www.bloctel.gouv.fr 
Dans le cadre de la protection des Données personnelles, nous vous invitons à ne pas inscrire de Données sensibles dans le champ de saisie libre
Ce site est protégé par reCAPTCHA, les Politiques de Confidentialité et les Conditions d'Utilisation de Google s'appliquent.

Découvrir nos outils